Monkeytoe CM03 – Heavy-Duty Single Condenser Mount – Up To 300kg

CM03.12.3

Product Description

Aluminium, Modular, Quick to Install, fully Adjustable & Compliant HVAC Mount supports up to 300KG!

Our Condenser Mounts come as a boxed kit-set, including the specialised Monkeytoe mounting clips and fixings to ensure loads are taken down to the roof structure and not applied to the roof itself.

Suitable for a variety of condenser, air conditioner, air handler and mechanical units, this product is a fully engineered solution that can be mounted on most roof types.

 

Product Benefits

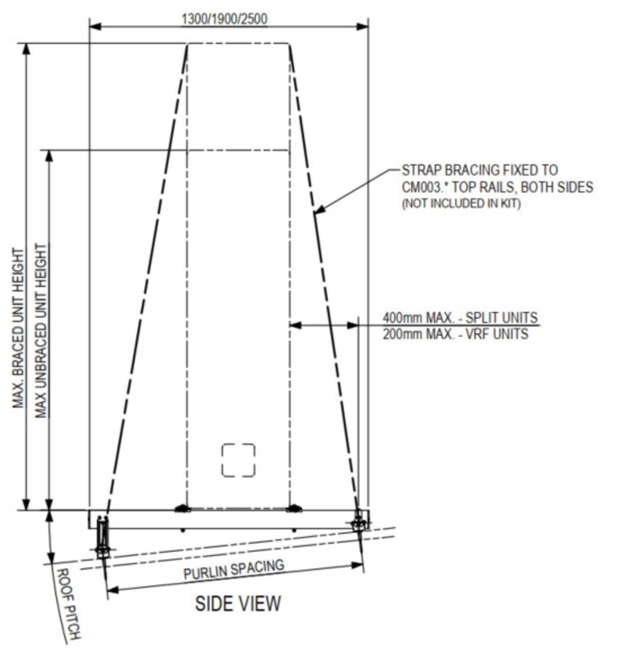
  • Up to 300kg
  • 600 & 2400mm purlin spacings
  • Anti-vibration mounts included
  • Provides an adjustable mounting area of 1200mm x 2400mm with a load rating of 300kg
  • Fully engineered to AS/NZ 1170.0, 1170.1 and 1170.2 (wind loads) and 1170.5 (seismic loads)
  • Suitable for wind regions NZ 1-4
  • Suitable for any roof profile up to 60mm in depth

Requires 1 x CMRC.6 for wind region C

Resources

Monkey Toe Catalogue

Monkey Toe Catalogue

0 bytesPDF
Installation Manual

Installation Manual

0 bytesPDF
Monkey Toe Specification Sheets

Monkey Toe Specification Sheets

0 bytesPDF

Videos